スタイリッシュな黒の外観に
カフェみたいなLDKがかわいい32坪 3LDK
この物件の見学受付、公開は終了いたしました。
菊陽町久保田のまちなかモデルハウス。 LDKがまるでカフェにきたかのようにかわいくてオシャレな新築。畳コーナーや使い勝手の良い横並びのダイニング・キッチンなど、暮らしを快適にするアイデアが満載の32坪3LDK 二階建てのモデルハウスです。
菊陽町久保田 まちなかモデルハウス
POINT ONE
モデルハウスの見どころ

2.7帖のタタミコーナー
LDKの横にある2.7帖の畳コーナーは、小さい子どものお昼寝スペースやちょっとくつろぐスペースとして活用できます。さらに、雨の日でも室内干しできるように、室内干し器具の取り付けもできるようにしました。家事スペースとしても◎
菊陽町久保田 まちなかモデルハウス
POINT TWO
モデルハウスの見どころ

折下げ天井
キッチン上部には今人気の折下げ天井をとりいれ、間接照明を使ってスタイリッシュな雰囲気に。玄関からLDK、洗面脱衣室に寝室まで、収納スペースもたっぷりと充実。
菊陽町久保田 まちなかモデルハウス
POINT THREE
モデルハウスの見どころ

ダイニング・キッチン・パントリーの横並びレイアウト
ダイニングとキッチンを横並びにすることで、配膳や片付けの手間を最小限に。さらに、キッチン回りに増えがちな食品や物をキッチンの奥のパントリーに配置。片付けの手間やまとめ買い派の強い味方。
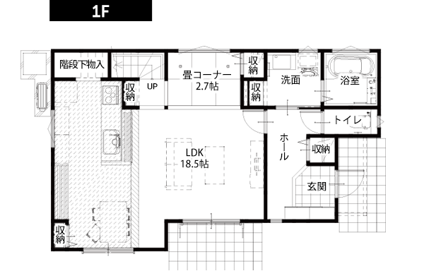
こだわりの
間取りを公開中!
間取りでイメージする理想の暮らし
暮らしを豊かにする理想の間取り。こだわりの想いを実現した間取りアイデアを参考に、家づくりをもっとイメージしましょう。実際に見学した後の振り返りにもお役立てください。

まちなかモデルハウス
シアーズタウン菊陽町役場南 分譲地内
このまちなかモデルハウスの見学受付は終了しました
菊陽町久保田の分譲地内のシアーズホームのまちなかモデルハウスです。分譲地にお越しの際は、ぜひ、まちなかモデルハウスにもお立ち寄りください。スタッフ一同、こころよりお待ちしております。

| まちなかモデルハウス | 菊陽町久保田 32坪 3LDK 二階建て |
|---|---|
| 完成時期 | 2022年7月完成 |
| 所在地 | 菊陽町久保田(シアーズタウン菊陽町役場南 分譲地内) |
| 問合せ先 | - |
| 駐車場 | あり |
| キッズスペース | あり |




