この物件の見学受付、公開は終了いたしました。
熊本市北区楠にある「まちなかモデルハウス」
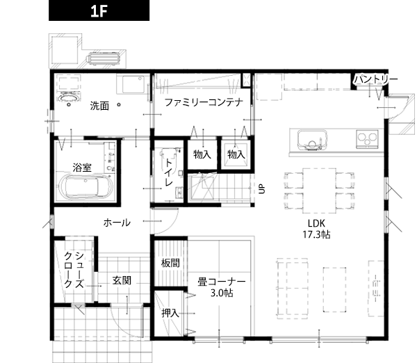
熊本市北区楠のまちなかモデルハウス。共働き夫婦におすすめの家事ラクの家事動線の間取り。ファミリーコンテナやパントリーなど、家事動線を考慮した収納や、雨天時に活躍する室内干しスペースなどアイデアが満載の36坪3SLDKのモデルハウスです。
菊陽町久保田 まちなかモデルハウス
POINT ONE
モデルハウスの見どころ

家族全員で使う大容量収納スペース ファミリーコンテナ
リビングに集まりがちな家族の荷物の一時置き対策に有効なファミリーコンテナ。①帰宅→②洗面脱衣室で手洗いうがい→③ファミリーコンテナで荷物を収納の一連の動きがスムーズな動線。隣の洗面脱衣室で室内干しした後、ファミリーコンテナにすぐ収納できるのも時短に。
熊本市北区楠 まちなかモデルハウス
POINT TWO
モデルハウスの見どころ

2か所の室内干しスペース
1階の洗面脱衣室と2階のホールで室内干しできるので、天気やPM2.5による大気汚染などの影響を受けずにすみます。日中に家にいないことが多い、共働き夫婦におすすめです。
熊本市北区楠 まちなかモデルハウス
POINT THREE
モデルハウスの見どころ

LDKをより広く演出する吹抜け
キッチンからはリングダイニング、畳コーナーを一気に見渡すことができます。リビングの上を吹き抜けにすることで、17.3帖のLDKを実際より縦に広く演出リビングに隣接する3.0帖の畳コーナーは、LDKに横の広がりを持たせてくれます。
こだわりの
間取りを公開中!
間取りでイメージする理想の暮らし
暮らしを豊かにする理想の間取り。こだわりの想いを実現した間取りアイデアを参考に、家づくりをもっとイメージしましょう。実際に見学した後の振り返りにもお役立てください。

まちなかモデルハウス
このまちなかモデルハウスの見学受付は終了しました

| まちなかモデルハウス | 熊本市北区楠 36坪 3SLDK 二階建て |
|---|---|
| 完成時期 | 2022年5月完成 |
| 所在地 | 熊本県熊本市北区楠 |
| 問合せ先 | - |
| 駐車場 | あり |
| キッズスペース | あり |




