水回りがまとまった
優れた家事動線の32坪 4LDK
山鹿市鹿本町にある「二階建てのまちなかモデルハウス」
家事効率の良いスムーズな水回り動線や、帰宅動線上に配置した手洗い洗面、多目的に活躍するリビング一角の作業カウンターなど、暮らしを快適にするアイデアが満載の32坪4LDK 二階建てのモデルハウスです。
山鹿市鹿本町 まちなかモデルハウス
POINT ONE
モデルハウスの見どころ

キッチンと隣同士に配置したランドリールーム
キッチンと洗面脱衣室兼ランドリールームを隣同士に配置して、家事効率UP。洗う→干す→収納が一カ所でできるのも◎
山鹿市鹿本町 まちなかモデルハウス
POINT TWO
モデルハウスの見どころ

手洗い・うがいが習慣化する帰宅動線上の手洗い洗面
シューズクロークに靴を片付けたら、そのまま手洗い・うがいへ。花粉やウイルスを部屋に持ち込まないよう工夫された動線です。朝の忙しい時間にも活躍します。
山鹿市鹿本町 まちなかモデルハウス
POINT THREE
モデルハウスの見どころ

家事や勉強など多目的に活躍するカウンター
リビングの一角に設けたカウンターは、宿題やちょっとした作業スペースとして最適。
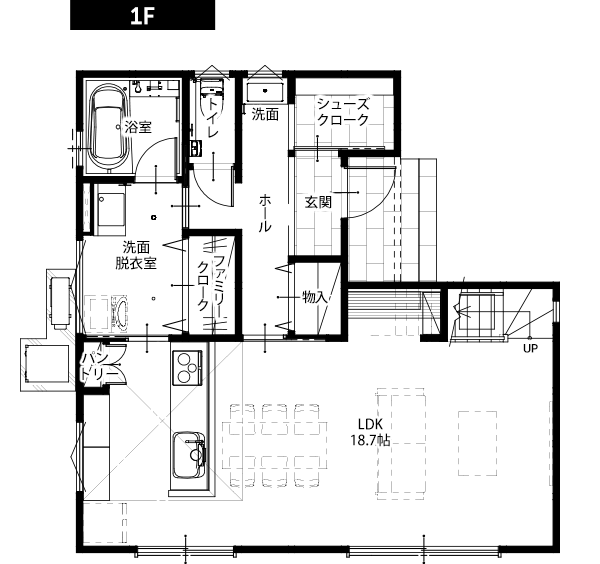
こだわりの
間取りを公開中!
間取りでイメージする理想の暮らし
暮らしを豊かにする理想の間取り。こだわりの想いを実現した間取りアイデアを参考に、家づくりをもっとイメージしましょう。実際に見学した後の振り返りにもお役立てください。

まちなかモデルハウス
このまちなかモデルハウスの見学受付は終了しました
山鹿市鹿本町のシアーズホームのまちなかモデルハウスです。注文住宅だから実現できる間取りの工夫・アイデアが体感できる、参考にしやすいモデルハウスです。

| まちなかモデルハウス | 山鹿市鹿本町 32坪 4LDK 二階建て |
|---|---|
| 完成時期 | 見学終了 |
| 所在地 | 山鹿市鹿本町 |
| 問合せ先 | - |
| 駐車場 | あり |
| キッズスペース | なし |




