
熊本市南区富合町 23坪 3LDK
このモデルハウスは、売約済です。
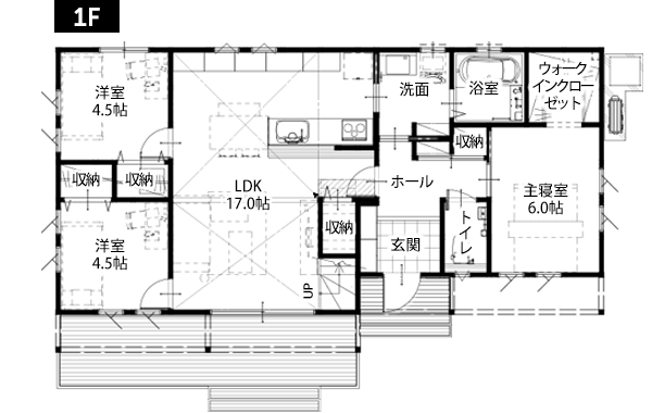
リビングに暖かな光が注ぐ
23坪 3LDKの平屋建て
デッキとつながったリビングが明るく開放的な間取り
家事の中心となるキッチンや洗面などの水回りをまとめたので、家事の効率もUPし、家事の時短が実現します。暖かな光が注ぎ込むリビングは、デッキともつながっていて、バーベキューやお子さまがビニールプールで水遊びをしたりと楽しみ方色々。また、デッドスペースを有効活用した小屋裏収納には、季節物を収納できるので生活スペースを広く使うことができます。


1F面積
78.66㎡(23.79坪)
建築面積
90.67㎡(27.42坪)
延床面積
78.66㎡(23.79坪)
-
-
毎日の暮らしに便利
熊本市南区富合町の周辺環境
小学校まで徒歩5分圏内の通学に便利な環境
熊本市南区富合町の建売・モデルハウスの周辺環境。小・中学校まで2キロ圏内。通学に便利なのはもちろん、近隣には、スーパーや銀行、区役所などもある暮らしやすい環境です。






教育施設・公共施設
富合小学校約 350メートル
富合中学校約 1,200メートル
ことな保育園約 450メートル
第一幼育園約 550メートル
金融機関
肥後銀行 川尻支店約 3,400メートル
熊本銀行 川尻支店約 3,300メートル
熊本市南区役所約 350メートル
医療施設
にしくまもと病院約 850メートル
上野小児科医院約 3,500メートル
ひらのデンタルクリニック約 500メートル
ショッピング・その他の施設
イワサキエース 川尻店約 3,000メートル
カインズ 熊本宇土店約 2,500メートル
クロス21 UTO約 3,200メートル
ホームプラザナフコ 富合店約 950メートル
建売住宅 物件概要・アクセスマップ
建売・モデルハウス熊本市南区富合町 23坪 3LDKの新築平屋建て
最寄駅・バス停産交・熊本バス「南区役所」バス停 徒歩約4分
所在地
熊本県熊本市南区富合町清藤
交通
産交・熊本バス「南区役所」バス停 徒歩約4分
校区
富合小学校・富合中学校
販売価格
-
間取り
3LDK
駐車場
3台
土地面積
186.53㎡(56.42坪)
建物面積
78.66㎡(23.79坪)
構造・工法
木造・軸組平屋建
屋根
スレート葺
土地の権利形態
所有権
地目
宅地渡し
都市計画
市街化区域
用途地域
第一種低層住居専用地域
建ぺい率
50%
容積率
100%
上水道
公営上水道(要負担金)
下水道
公共下水道(要負担金)
電気
九州電力
ガス
個別プロパンガス
取引態様
売主
建築確認番号
第201933680号(2020年3月31日)
道路
分譲地内幅員 約6.0m
その他・特記事項
-
完成時期
2020年9月完成
入居時期
相談
見学可能期間
2020年9月以降
情報更新日
2021年6月28日




